Dessin en élévation 2D d’une maison d’architecte, plan architectural détaillé pour projet résidentiel.

PERMIS DE CONSTRUIRE ET PROJETS IMMOBILIERS : VOS CONCEPTS 3D & 2D SUR MESURE 

 


Image commerciale d'architecture réalisée avec D5 RENDER

Modélisation 3D d’un projet immobilier en Normandie (2025), réalisée par O Cœur des Plans pour un promoteur.

Imagerie 3D réaliste pour un permis de construire de pharmacie, région Haute-Savoie (74), réalisée par O Coeur des Plans pour la mise en valeur architecturale du projet.

Rendu 3D architectural d’une pharmacie pour dossier de permis de construire, réalisée en Haute-Savoie (74) – 2025.

Déclaration préalable de travaux pour mise en conformité d’une terrasse, réalisée pour un marchand de biens à Joinville-le-Pont (Val-de-Marne)

Déclaration préalable de travaux pour mise en conformité d’une terrasse à Joinville-le-Pont (Val-de-Marne, 94340)

maison en ossature bois modélisée en 3D pour plaquette commerciale par ocoeurdesplans

Illustration 3D professionnelle d’une maison en ossature bois, projet résidentiel 2025

Maison en région PACA modélisée en 3D avec D5 Render pour support commercial et architectural.

Visualisation 3D d’un projet de maison individuelle pour un constructeur dans le Var (2025).

Perspective 3D réalisée par O Coeur des Plans pour un fabricant de maisons en ossature bois, illustration architecturale.

Perspective 3D hyperréaliste pour un fabricant de maisons en ossature bois basé en Bourgogne (2025).

Image 3D commerciale d’intérieur réalisée avec D5 Render par O Cœur des Plans pour un marchand de biens à Auxerre (89000, Yonne)

Modélisation 3D d’intérieur pour projet commercial à Vichy, Allier. (Auvergne-Rhône-Alpes, 2025)

Conception 3D d’un salon et salle à manger inspirés des habitats traditionnels d’Asie Centrale, réalisée pour une architecte d’intérieur à Bichkek (2025).

Conception 3D d’un salon et d’une salle à manger, inspirés des habitats traditionnels d’Asie Centrale (2025).

 

Concept et agencement 3D d’une chambre d’enfant, visualisation réaliste pour projet d’aménagement intérieur.

Concept 3D d’une chambre d’enfant, aménagement et design intérieur (2025).

Plan 3D de la distribution des pièces après rénovation, réalisé pour un marchand de biens situé à Auxerre (Yonne, 89), concept architectural par O Coeur des Plans

Plan de distribution intérieure après rénovation, projet commandé par un marchand de biens à Auxerre (Yonne, 89).

Rendu 3D réaliste d’une gamme de maisons en ossature bois, modélisation réalisée pour un constructeur basé en Bourgogne (21) par O Coeur des Plans.

Rendu 3D d’une gamme de maisons en ossature bois, réalisé pour un constructeur en Bourgogne (21).


pcmi 6 image en 3D en état et en état projeté o coeurdesplans Image 3D pour un changement de destination d'un bâtiment existant

Modélisation 3D d’un bâtiment existant en Haute-Saône (2023) pour projet de changement de destination et rénovation.

insertion paysagère PCMI 6 vosges, la bresse88250

Illustration 3D d’un chalet pour permis de construire PCMI 6 à La Bresse (Vosges, 2022), projet résidentiel pour le compte d’un fabricant de maison en poteaux-poutres.

illustration en 3 D de petit collectif avec i render nxt

Illustration 3D d’un petit collectif réalisée pour un constructeur de maisons individuelles (Yvelines, 78 – 2021).

Illustration 3D pour permis de construire (PCMI 6) d’une maison individuelle au Pays Basque. (Pyrénées-Atlantiques, 2023)

image en 3D lotissement, reims

Illustration 3D pour permis de construire (PCMI 6) d’une maison individuelle en Marne. (2020)

garage en bois, et chalet, cluses, ocoeurdesplans

Insertion d'image 3D sur fond photographique pour un permis de construire, PCMI 6 d'un garage en ossature bois. (Cluses, Haute-Savoie, 2021)

maison en madriers, par residentiel de loisirs en seine et marne 77

Image en 3D pour un permis de construire de deux maisons en madriers, PCMI 6 concernant un parc résidentiel de loisirs. (Saint-Germain-Laxis, Seine & Marne, 2020)

pcmi 6 maison individuelle melun

Image en 3D pour un permis de construire d'agrandissement, PCMI 6 d'une  maisons individuelles. (Vaux-Le-Pénil, Seine & Marne, 2020)

hangar en 3d, pcmi 6

Image 3D d'un hangar pour permis de construire, PCMI  6. (Plougasnou, Finistère, 2020)

Rendu 3D d’un projet d’architecture contemporaine à Saint-Maur, Val-de-Marne

Illustration de présentation commerciale pour promoteur immobilier. (Saint-Maur-des-Fossés, Val de Marne, 2019)

Modélisation 3D d'une maison individuelle martiniquaise pour permis de construire, réalisée par ocoeurdesplans

Réalisation d'une image numérique 3D sur fond photographique pour un permis de construire, région Caraïbes , La Trinité, La Martinique. (volet paysager PCMI 6, 2019)

Rendu 3D d’un hangar agricole équipé de panneaux photovoltaïques pour permis de construire PCMI 6

Volet paysager, réalisé à partir d'une image numérique 3D d'un hangar agricole incrustée sur fond photographique pour un permis de construire, PCMI  6 (région d'Occitanie, Le Castera, Haute-Garonne, 2019).

Rendu 3D d’un volet paysager pour dossier de permis de construire PCMI 6, Yonne

Volet paysager, à partir d'une image numérique 3D incrustée sur fond photographique pour un permis de construire, PCMI  6 (région Bourgogne-Franche-Comté, Venoy, Yonne, 2019).

Rendu 3D d’un volet paysager pour dossier de permis de construire, réalisé par ocoeurdesplans.com

Insertion d'une image numérique 3D sur fond photographique pour un permis de construire, région Iles de France, Draveil, Essonne. (volet paysager PCMI 6, 2019)

Visualisation 3D réaliste de bureaux commerciaux pour entreprise d’aménagement industriel

Illustration de présentation commerciale pour une société d'équipement. (région Ile de France, Trilport, Seine & Marne, 2019)

Rendu 3D d’un projet de bâtiment industriel situé en Guyane française

Illustration de présentation pour un projet de bâtiment industriel. (DOM-TOM, Guyane Française, 2018)

Image numérique en 3D pour permis de construire PCMI 6 d’un projet situé dans les Hauts-de-France

Insertion d'une image en 3D sur fond photographique pour un permis de construire, région des Hauts de France. (volet paysager PCMI 6, 2018)

Rendu 3D d’un projet pour permis de construire en région Rhône-Alpes, par ocoeurdesplans.com

Insertion d'illustration en 3D sur fond photographique pour un permis de construire, région Auvergne-Rhône-Alpes. (volet paysager PCMI 6, 2018)

Rendu 3D intégré sur fond photographique pour projet de permis de construire PCMI 6, Haute-Savoie

Insertion d'image en 3D sur fond photographique dans le cadre d'un permis de construire, région Auvergne-Rhône-Alpes. (volet paysager PCMI 6, 2018)

Perspective 3D d’un projet d’architecture de luxe sur fond photo

Insertion d'image 3D sur fond photographique pour un projet d'extension d'une propriété de luxe. Région Iles de France. (volet paysager PCMI 6, 2018)

Visualisation 3D d’une propriété de luxe sur fond photo, réalisée par ocoeurdesplans

Insertion d'image 3D sur fond photographique pour un projet d'extension d'une propriété de luxe, vue de l'arrière. Région Iles de France. (volet paysager PCMI 6, 2018)

Projet PCMI 6 pour maître-d’œuvre en ossature bois, modélisation 3D, Bretagne

Présentation en image 3D sur fond photographique  d'un  projet de réhabillage d'une devanture d'entrepôt pour le compte d'un Maitre-d'oeuvre, région Bretagne. (2018)

Illustration 3D d’un projet architectural pour permis de construire, réalisée par ocoeurdesplans.com

Insertion d'illustration en 3D sur fond photographique pour un permis de construire, prestation commandée par un bureau d'étude de Bretagne. (volet paysager PCMI 6, 2018)

Volet paysager 3D sur fond photo pour projet PCMI 6, permis de construire

Insertion d'image 3D sur fond photographique pour un permis de construire, prestation commandée par un bureau d'étude de Bretagne. (volet paysager PCMI 6, 2018)

Vue arrière 3D d’un projet PCMI 6 pour permis de construire dans le Val-d’Oise, réalisé par www.ocoeurdesplans.com

Suite, insertion d'image 3D, vue arrière sur fond photographique pour un permis de construire, région de l'Oise. (volet paysager PCMI 6, 2018)

Visualisation 3D d’un volet paysager pour projet PCMI 6 de permis de construire, Seine-et-Marne, sur fond photo

Insertion d'image 3D sur fond photographique pour un permis de construire. (volet paysager PCMI 6, région Seine & Marne 2018)

Illustration 3D commerciale pour projet d’un constructeur dans le Var, région PACA, réalisée par ocoeurdesplans

Illustration commerciale pour un constructeur du Var. (région PACA, 2016)

Illustration 3D pour projet commercial d’un constructeur de maison individuelle en région PACA

Illustration commerciale pour un constructeur du Var. (région PACA, 2016)

Visualisation 3D sur fond photographique pour projet PCMI 6 d’une villa, Var

Insertion 3D sur fond photographique pour dossier de permis de construire PCMI6. (2016)

Visualisation 3D sur fond photographique pour projet d’un constructeur de maison individuelle sur la Côte d’Azur

Image réalisée pour un constructeur de maison individuelle en région PACA/Var (2015)

Visualisation 3D d’une maison individuelle pour PCMI 6 de permis de construire, projet en région PACA

Image réalisée pour un constructeur de maison individuelle en région PACA/Var (2015)

Visualisation 3D réaliste d’un bâtiment ou projet architectural

Image réalisée pour un fabricant de maison  ossature en métal (2015).

Imagerie d’architecture 3D pour projet de promotion immobilière, visualisation réaliste

Image réalisée pour un fabricant de maison en ossature  métal, version extérieure finition enduit (2015)

Illustration 3D pour projet de promotion immobilière réalisée pour un constructeur de maison à ossature bois (MOB

Image commandée par un constructeur de maison en ossature bois. (2015)

Illustration 3D d’un projet pour constructeur de maison en bois, visualisation architecturale.

 Image pour une gamme de maison en bois. (2013)

Illustration 3D pour dossier PCMI 6 de permis de construire, réalisée pour un maître d’œuvre.

PCMI 6. (année 2013)

Illustration 3D pour permis de construire PCMI 6, volet paysager, projet réalisé pour un particulier dans le Val-de-Marne.

Insertion 3D sur photo pour

PCMI 6,

Val de Marne. (2015)

Image 3D réalisée pour un marchand de biens immobiliers situé dans les Hauts-de-Seine

Image 3D d'insertion pour une  DP6 (déclaration préalable de travaux). (2015)

Insertion 3D sur fond photographique pour dossier de permis de construire PCMI 6, projet situé en Seine-et-Marne

Image 3D sur photo de terrain, PCMI 6. (année 2012)

Illustration 3D avec insertion photo pour dossier PCMI 6, permis de construire d’un projet situé dans l’Essonne

Image d'insertion 3D sur photo pour un dossier de permis de construire, région des Hauts de Seine,

PCMI 6. (2014)

Avant-projet en 3D

Image d’ambiance en 3D réalisée pour un architecte basé dans l’Aube, visualisation architecturale (2010).

Télécharger
PCMI 6, image 3D, septembre 2014
Insertion 3D pour volet paysager dans le dossier de permis de construire d’un projet situé en Haute-Savoie
PCMI 6 ocoeurdesplans.pdf
Document Adobe Acrobat 877.1 KB

Image pour PCMI 6 (2012).



PCMI 5 élévations pour dossier de permis de construire, projet architectural situé à Annecy, Haute-Savoie

Concept d'architecture, élévations façade avant et pignon, région d'Annecy (2018)

Conception 3D d’une extension pour atelier d’artiste, visualisation architecturale réaliste

Etude architecturale pour une extension-atelier d'artiste accolée à un moulin champêtre situé en région Ile de france dans l'Essonne. (2018)

Réhabilitation 3D d’un mobile home, visualisation intérieure en 3D pour projet d’aménagement

Étude pour une réhabilitation d'un mobile home, avec bardage extérieur en bois, et une extension sur salon. (2016)

Élévation 3D d’une réhabilitation de mobile home avec bardage bois extérieur, visualisation architecturale
Rendu 3D d’étude volumétrique sans texture, visualisation architecturale conceptuelle

Recherche volumétrique d'une villa en région PACA (2016)

Extension en 3D, étude volumétrique pour dossier de permis de construire, projet situé dans le Val-de-Marne

Étude volumétrique d'un projet d'extension (2015)

Avant-projet en élévation 2D et étude volumétrique en couleurs, rendu 3D réaliste pour projet architectural au Pays Basque
Rendu 3D réaliste avec textures pour dossier d’architecture, projet situé en Martinique

Image d'avant-projet pour une maison à ossature bois aux Antilles Françaises. (2015)

Avant-projet de réhabilitation 3D d’une maison de village avec panneaux solaires, prestation pour maître-d’œuvre situé dans l’Aube, Champagne-Ardennes

Avant-projet pour une réhabilitation d'une maison de village dans l'Aube.

(modifications des ouvertures, 2013)

Maison en ossature bois réalisée en 3D pour catalogue d’un constructeur, visualisation architecturale

 



Respect de la création et des droits d’auteur ©

Chez O COEUR DES PLANS, chaque image, plan ou rendu 3D est le fruit d’un travail de précision et de créativité.
Certaines réalisations sont issues de projets confiés par des architectes, maîtres d’œuvre ou fabricants de maisons : nous en assurons la modélisation, les rendus ou l’illustration graphique à partir de leurs plans et concepts.

👉 Qu’il s’agisse de nos créations originales ou de visuels réalisés en collaboration avec nos partenaires, tous les contenus de ce site (textes, images, illustrations 2D/3D, plans, logos et éléments graphiques) sont protégés par le Code de la propriété intellectuelle.

Toute reproduction, diffusion ou utilisation – même partielle – sans autorisation écrite est strictement interdite et constitue une contrefaçon, passible de sanctions civiles et pénales (article L.122-4 et suivants du Code de la propriété intellectuelle).

 

© O Coeur des Plans – 3D & 2D Architectural Renderings

All texts, images, 2D/3D illustrations, architectural renderings, plans, and graphics on this site are protected under French intellectual property law.

Some works shown were commissioned by architects, project managers, or home builders. O Coeur des Plans provides professional 3D modeling and realistic renderings based on clients’ plans or concepts.

In accordance with Article L.122-4, any unauthorized use, reproduction, or distribution—full or partial—is strictly prohibited.

 

 

Recherche de décoration intérieure, finition lambris. (2010)

Illustration 3D d’une décoration intérieure avec gros lambris, visualisation réaliste pour projet architectural

"Exemples d'avant projets en 2D et création de permis de  construire."


Élévation 2D maison individuelle moderne, dessin architectural détaillé
Plan en élévation comparatif état existant et projeté, PCMI 5 permis de construire – O Cœur des Plans
Élévation architecturale d’un petit collectif à Chennevières, Val-de-Marne, réalisée pour une agence d’architecture
Élévation 3D d’un petit collectif réalisée avec SketchUp Pro pour un bureau d’études techniques, projet situé en Essonne (91)
Élévation PCMI 5 de permis de construire, projet en sous-traitance pour une agence d’architecture en Seine-et-Marne (77), projet situé dans le Val-de-Marne (94)
Projet architectural en 3D pour investisseur-promoteur immobilier, concept situé en Tunisie
Plan en élévation PCMI 5 d’un chalet en 3D, réalisé avec SketchUp Pro 2021, projet à Gérardmer, Vosges
Plan en élévation 3D d’une villa à la Martinique, dossier PCMI 5 pour permis de construire
Élévation en état projeté, travail en sous-traitance pour une agence d’architecture, projet situé en Seine-et-Marne (77000)
Plan en élévation du portail d’une maison individuelle, DP4 déclaration préalable de travaux, projet à Montreuil-aux-Lions, Aisne (02521)
Plan en élévation PCMI 5 d’un hangar bois, dossier permis de construire, projet en Centre-Val de Loire
Élévation 2D en état projeté pour déclaration préalable de travaux, projet situé à Maisons-Alfort (94700), Val-de-Marne
Plan en élévation projetée pour déclaration préalable de travaux, projet à Ozoir-la-Ferrière (77330), Seine-et-Marne
Illustration architecturale 3D d’une maison d’architecte, réalisée avec SketchUp Pro, projet situé à Saint-Maur-des-Fossés (94100), Val-de-Marne
Plan en élévation PCMI 5, projet maison individuelle, région Occitanie – O Cœur des Plans
Plan en élévation pour permis de construire, projet en sous-traitance pour un constructeur de maison individuelle traditionnelle en PACA
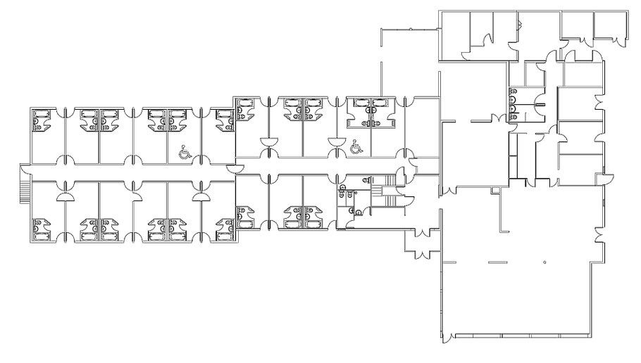
Plan de niveau pour restaurant, projet en Seine-et-Marne, travail en sous-traitance pour agence d’architecture
Plan de niveau pour restaurant en Seine-et-Marne (77), projet réalisé en collaboration avec une agence d’architecture
Plan en 2D des cellules RDC, projet architectural pour particulier dans le Loiret (45)
Plan de masse PCMI 2 pour permis de construire, maison traditionnelle, projet à Saint-Raphaël (83700), Var
Coupe longitudinale 2D des fondations, réalisée avec SketchUp Pro, pour société d’expertise en construction en Île-de-France
Illustration architecturale en 2D, coupe longitudinale des fondations pour projet en Île-de-France, société d’expertise en construction

Détails de coupe & fondations réalisées pour un expert en sinistre dans le domaine de la construction.

Plan en 2D d’un réseau électrique et du RDC pour maison individuelle, projet réalisé en sous-traitance, constructeur en Essonne (91)

 

Plan technique de cellules réalisé pour un constructeur de maison individuelle en région Ile de France.

Coupe technique détaillée de construction, prestation par O Cœur des Plans, projet en sous-traitance pour constructeur de maison individuelle dans les Yvelines (78)

Détails de coupe & fondations réalisées pour un constructeur de maison individuelle en région Ile de France.